МЗ Урал

Завод металлоформ
№ 1 в России

Адрес в Нижнекамске:
Спортивная, 2

8 (800) 333-07-15
Оставить заявку

Оставьте заявку

Специально для Вас мы подготовим выгодные цены, условия и сроки поставки

Меню
МЗ Урал
  • О заводе
  • Продукция
    • Металлоформы для производства ЖБИ
    • Оборудование для производства ЖБИ
    • Технологические линии для производства ЖБИ
    • Бетонные заводы
    • Оборудование для производства пенобетона
    • Оборудование для производства полистиролбетона
    • Оборудование для производства сухих смесей
  • Услуги
  • Цены
  • Лизинг
  • Новости
  • Статьи
  • Контакты
12ДД-400-0,93(0,81)-0,61БП
ЛСу-10
12ДД-400-0,85(0,81)-0,61БПк
ЛС17м
3ПБ13
2УТК-1020-1-2
Металлоформа КС 15.9
Металлоформа МПЛ-1.5
ГлавнаяМеталлоформы для производства ЖБИЭлектросетевое строительствоФорма СВ (опоры освещения) СВ-95-3

СВ-95-3

СВ-95-3
СВ-95-3
СВ-95-3
СВ-95-3
Увеличить
Серии, ГОСТы, ТУ для ЖБИ
Серии, ГОСТы, ТУ для ЖБИ
Выгодный лизинг от 6,9%
Выгодный лизинг
Доставка по РФ и СНГ
Доставка по РФ и СНГ
Гарантия 1 год
Гарантия 1 год
Стоимость:
по запросу

Оставьте заявку

Специально для Вас мы подготовим выгодные цены, условия и сроки поставки

  • Базовая комплектация
  • Дополнительные опции
  • Описание и особенности
  • Схема и характеристики
  • Оборудование для производства бетона
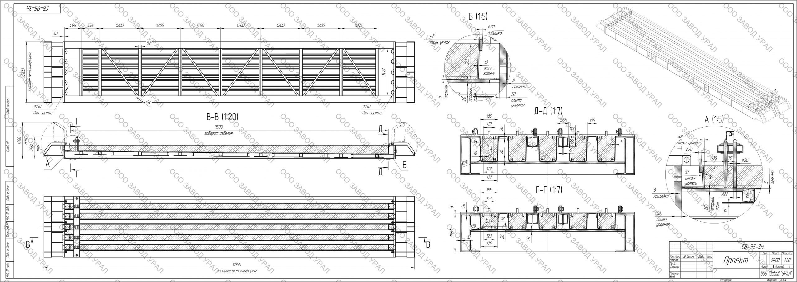
Базовая комплектация

Длинна – 11100мм
Ширина – 1900мм
Высота – 700мм

рама – двутавр 40Б1
рама – швеллер 10

Зеркало – 5мм
Упорная плита – 50мм

Масса – 5400кг

Дополнительные опции

Вибратор ВИ-99 (380В)

Номинальная потребляемая мощность, кВт 0,5
Номинальная напряжение, В 380
Номинальная частота тока, Гц 50
Частота вращения, об.мин 3000
Статический момент, кг.см 2,5…5,1
Вынуждающая сила при синхронной частоте колебаний, кН 2,5…5,0
Габаритные размеры, мм 271х187х208
Присоединительные размеры, мм 100х145Ø13
Масса ИВ-99Н, кг 15
Рабочий ресурс, ч 3000

Вибратор ИВ-98

Номинальная потребляемая мощность, кВт 0,9
Номинальная напряжение, В 380
Номинальная частота тока, Гц 50
Частота вращения, об.мин 3000
Статический момент, кг.см 5,7…11,4
Вынуждающая сила при синхронной частоте колебаний, кН 5,6…11,3
Габаритные размеры, мм 365х235х250
Присоединительные размеры, мм 130х190Ø17
Климатическое исполнение У2
Масса ИВ-98Б, кг 20
Рабочий ресурс, ч 700
Тип Площадочный вибратор

ВПК-3

Вибротумба ВПК-3
Амплитуда колебаний (расчётная), мм 0,1-0,15
Грузоподъемность одной тумбы, кг 4500
Частота колебаний, шт/мин 3000
Мощность потребления, кВт 10.8
Вибратор ВИ-107Н
Количество, шт 4
Мощность потребления одного, кВт 2,7
Напряжение, В 380
Частота тока, Гц 50
Длина, мм 3000
Ширина, мм 2200
Высота, мм 800
Масса, кг 1200

Бадья Колокольчик

Длина 1500 мм
Ширина 1500 мм
Высота 2000 мм
Зеркало 3 мм
Обвязка + ноги + основание Швеллер 8
Объём 1,1 м3

Бетоноукладчик

Бетоноукладчик
Длина 4100 мм
Ширина 2400 мм
Высота 3300 мм
Рама труба 180х140мм
Масса 3500 кг
Обьем бункера бетона 2,5 м3
Питатель бункера ленточный
Ширина ленты питателя 1400 мм
Число оборотов барабана питателя 31 об.мин
Скорость движения ленты питателя 26,5 м.мин
Привод транспортера 4кВтх1500 КА77х31
Скорость перемещения бетоноукладчика 10/20 м.мин
Привод перемещения Бетоноукладчика 2.2 кВт NMRV130 (2шт)
Колея 2868 мм

Описание и особенности

СВ-95-3

Компания «УРАЛ» изготавливает высококачественные формы для производства изделий стойки железобетонные СВ-95-3, которые повсеместно используют в различных сферах строительства и теплоэнергетики. Без этих элементов многие направления не могут быть освоены в полной мере, так как высокая прочность и надежность железобетона пока не нашла своей достойной замены. Именно поэтому стойки СВ-95-3 для опор ЛЭП применяют в обязательном порядке. Это конические железобетонные столбы переменного сечения, которые используют для опоры линий электропередач. Применение только деревянных опор экономически не оправдано, так как дерево даже со специальной обработкой служит не так долго, как железобетон, при этом стоит отметить, что данный материал может быть использован на “сложных” грунтах и в агрессивных условиях эксплуатации.

Завод Урал реализует оборудование с различными параметрами. Толщина, масса и габаритные размеры устанавливаются ГОСТами. Обечайкам приписываются соответствующие названия. Они состоят из типа оборудования и его характеристик.

Завод Урал также изготавливает ЖБИ формы по индивидуальным параметрам заказчика. Стандартное оборудование не всегда подходит для поставленных целей. Наши профессионалы помогут составить чертежи под конкретные задачи и изготовят оборудование в короткие сроки.

Высокое качество, проверенное временем, вот что предлагает завод Урал. А положительные отзывы партнеров подтверждают его из года в год.

Схема и характеристики

Производительность в смену, шт 10
Количество изделий в форме 5
Оборачиваемость форм, раз в смену 1
Способ прогрева бетона в пропарочной камере
Габариты цеха (ДхШхВ), мм. зависит от кол*во форм
Грузоподъемность крана (не менее), т 10
Общая мощность сети (не менее), кВт 50
СВ-95-3м 00.00.000 Форма

Оборудование для производства бетона
Урал-Компакт 45

Бетонные заводы УРАЛ КОМПАКТ

Урал Лента 54

Бетонные заводы УРАЛ ЛЕНТА

Урал Скип 60

Бетонные заводы УРАЛ СКИП

Завод Урал
Завод металлоформ № 1 в России
Создание и продвижение сайта - Студия Бобрик
Наша продукция
  • Металлоформы для производства ЖБИ
  • Технологические линии для производства ЖБИ
  • Оборудование для производства ЖБИ
  • Бетонные заводы
  • Оборудование для производства пенобетона
  • Оборудование для производства полистиролбетона
  • Оборудование для производства сухих смесей
Информация
  • О заводе
  • Продукция
  • Цены
  • Лизинг
  • Новости
  • Контакты
8 (800) 333-07-15
+7 922 301-86-81

Нижнекамск, Спортивная, 2

пн-пт: 9:00 - 18:00 | сб-вс: вых.

Оставить заявку
kz-zavod-info

Купить металлоформы Завода Урал в Республике Казахстан

2010 - 2025 ООО «Завод УРАЛ», г. Нижнекамск
Политика конфиденциальности
закрыть
Начните вводить название продукции, которую хотите найти.
  • Меню
  • Категории
  • Металлоформы для производства ЖБИ
    • Гражданское строительство
      • ЛС
      • ЛМ
      • ЛМП
      • ЛП
      • Перемычки ПБ
      • Сваи “С”
      • ФБС
      • ФБС Универсальная
      • Форма Карнизов
      • Форма плит перекрытия ПК
      • Форма Фундамент ленточный “ФЛ”
    • Дорожное строительство
      • Дорожные плиты ПАГ, ПДН
        • Дорожные плиты “П” (ГОСТ 21924.2-84, ГОСТ 21924.1-84)
        • Дорожные плиты “ПД” (Серия 3.503-17; Серия 3.503.1-93)
        • Металлоформа ПАГ
        • Металлоформа ПДН
      • Форма Бордюров БР
      • Формы Нью Джерси
    • Инженерные коммуникации
      • ККС
      • Кольца колодцев
      • Лоток Б “Серия 3.503.1-60”
      • Лоток Л
      • Лоток ЛК
      • МПЛ
      • МШЛ
      • Форма БЛ
      • Форма ГБ
      • Тетраподы
      • Форма ЗКП
      • Форма Стойка бетонная Серия 3.501.1-159
      • Формы ЗК
      • Фундаментный стакан
      • Ригель Серия 3.407-115
    • Промышленное строительство
      • Плиты покрытия ребристые (ГОСТ 27215-87)
      • Утяжелители бетонные
      • Формы ПРГ
      • Ригели опирания
    • Электросетевое строительство
      • Форма СВ (опоры освещения)
      • Форма приставка “ПТ”
      • Унифицированная стойка УСО
      • Плита навесная
      • Фундаменты опор ЛЭП серии Ф (СЕРИЯ 3.407-115)
  • Оборудование для производства ЖБИ
    • Бадьи для бетона
    • Бетоноукладчик
    • Виброрама
    • Кантователь
    • Пригрузочная плита
    • Пуансонная машина
    • Вибротумбы
    • Передаточная тележка
  • Технологические линии для производства ЖБИ
  • Бетонные заводы
  • Оборудование для производства пенобетона
  • Оборудование для производства полистиролбетона
  • Оборудование для производства сухих смесей
  • О заводе
  • Продукция
    • Металлоформы для производства ЖБИ
    • Оборудование для производства ЖБИ
    • Технологические линии для производства ЖБИ
    • Бетонные заводы
    • Оборудование для производства пенобетона
    • Оборудование для производства полистиролбетона
    • Оборудование для производства сухих смесей
  • Услуги
  • Цены
  • Лизинг
  • Новости
  • Статьи
  • Контакты
Scroll To Top