Завод металлоформ
№ 1 в России
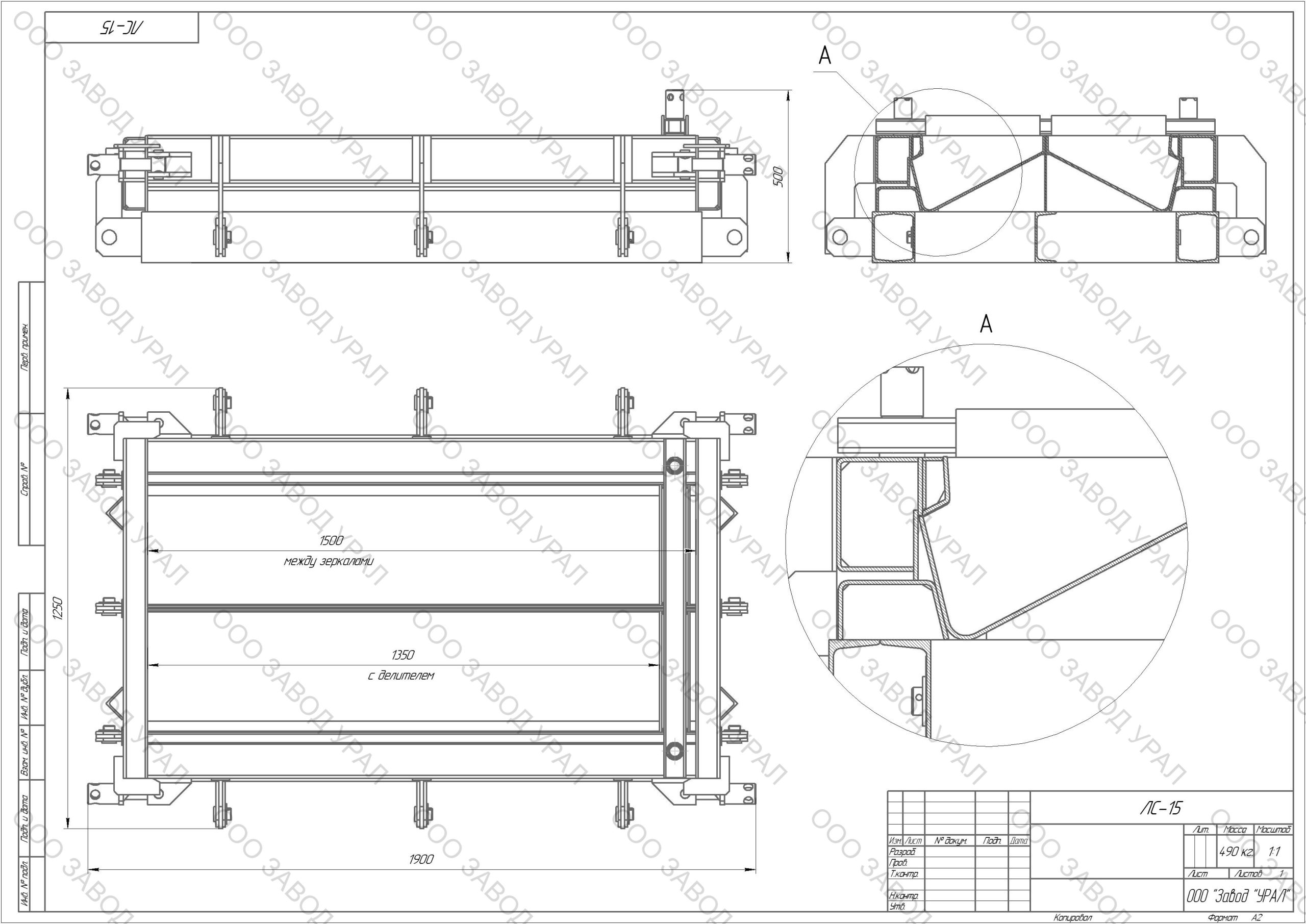
Длинна -1850мм
Ширина – 1220мм
Высота – 550мм
Зеркало – 5мм
Рама – Швеллер 14
Масса – 500кг

| Номинальная потребляемая мощность, кВт | 0,5 |
| Номинальная напряжение, В | 380 |
| Номинальная частота тока, Гц | 50 |
| Частота вращения, об.мин | 3000 |
| Статический момент, кг.см | 2,5…5,1 |
| Вынуждающая сила при синхронной частоте колебаний, кН | 2,5…5,0 |
| Габаритные размеры, мм | 271х187х208 |
| Присоединительные размеры, мм | 100х145Ø13 |
| Масса ИВ-99Н, кг | 15 |
| Рабочий ресурс, ч | 3000 |

| Номинальная потребляемая мощность, кВт | 0,9 |
| Номинальная напряжение, В | 380 |
| Номинальная частота тока, Гц | 50 |
| Частота вращения, об.мин | 3000 |
| Статический момент, кг.см | 5,7…11,4 |
| Вынуждающая сила при синхронной частоте колебаний, кН | 5,6…11,3 |
| Габаритные размеры, мм | 365х235х250 |
| Присоединительные размеры, мм | 130х190Ø17 |
| Климатическое исполнение | У2 |
| Масса ИВ-98Б, кг | 20 |
| Рабочий ресурс, ч | 700 |
| Тип | Площадочный вибратор |
| Амплитуда колебаний (расчётная), мм | 0,1-0,15 |
| Грузоподъемность одной тумбы, кг | 4500 |
| Частота колебаний, шт/мин | 3000 |
| Мощность потребления, кВт | 10.8 |
| Вибратор | ВИ-107Н |
| Количество, шт | 4 |
| Мощность потребления одного, кВт | 2,7 |
| Напряжение, В | 380 |
| Частота тока, Гц | 50 |
| Длина, мм | 3000 |
| Ширина, мм | 2200 |
| Высота, мм | 800 |
| Масса, кг | 1200 |
| Длина | 1500 мм |
| Ширина | 1500 мм |
| Высота | 2000 мм |
| Зеркало | 3 мм |
| Обвязка + ноги + основание | Швеллер 8 |
| Объём | 1,1 м3 |
| Длина | 4100 мм |
| Ширина | 2400 мм |
| Высота | 3300 мм |
| Рама | труба 180х140мм |
| Масса | 3500 кг |
| Обьем бункера бетона | 2,5 м3 |
| Питатель бункера | ленточный |
| Ширина ленты питателя | 1400 мм |
| Число оборотов барабана питателя | 31 об.мин |
| Скорость движения ленты питателя | 26,5 м.мин |
| Привод транспортера | 4кВтх1500 КА77х31 |
| Скорость перемещения бетоноукладчика | 10/20 м.мин |
| Привод перемещения Бетоноукладчика | 2.2 кВт NMRV130 (2шт) |
| Колея | 2868 мм |
Формы для ЖБИ Лестничные ступени “ЛС”. Изготовление по ГОСТ и параметрам заказчика
Лестничные ступени железобетонные – это элемент сборных лестничных маршей внутри зданий и сооружений, либо уличных конструкций. Лестничные марши иногда включают в себя несколько типов лестничных ступеней. Для наборного марша используются не только основные ступени ЛС, необходимы верхние фризовые ступени ЛСВ, а также нижние фризовые ЛСН – ими начинается и заканчивается лестница.
Изготовление железобетонных ступеней регулируется нормативами, которые прописаны в ГОСТ 8717.0-84 и ГОСТ 8717.1-84. Используются только разрешенные материалы и способы работы.
Согласно нормативам эксплуатация железобетонных ступеней разрешается при температуре до минус сорока градусов, т.е. в отапливаемых и не в отапливаемых помещениях.
Железобетонные ступени отлично зарекомендовали себя при монтаже внутренних и наружных лестниц различной конфигурации. В результате сочетания стального арматурного каркаса и тяжелого бетона получаются прочные изделия, слабовосприимчивые к временным нагрузкам, атмосферным осадкам и влиянию солнца. А плотная поверхность не впитывает загрязнения и легко моется.
В современном строительстве наиболее часто применяют железобетонные изделия, так как это наиболее прочные и долговечные элементы. Применение того или иного вида лестничных ступеней определяется проектом. Завод Урал предлагает формы для производства ЖБИ высокого качества.
Завод Урал реализует оборудование с различными параметрами. Толщина, масса и габаритные размеры устанавливаются ГОСТами. Обечайкам приписываются соответствующие названия. Они состоят из типа оборудования и его характеристик.
Завод Урал также изготавливает ЖБИ формы по индивидуальным параметрам заказчика. Стандартное оборудование не всегда подходит для поставленных целей. Наши профессионалы помогут составить чертежи под конкретные задачи и изготовят оборудование в короткие сроки.
Высокое качество, проверенное временем, вот что предлагает завод Урал. А положительные отзывы партнеров подтверждают его из года в год.
Нижнекамск, Спортивная, 2
пн-пт: 9:00 - 18:00 | сб-вс: вых.