Завод металлоформ
№ 1 в России
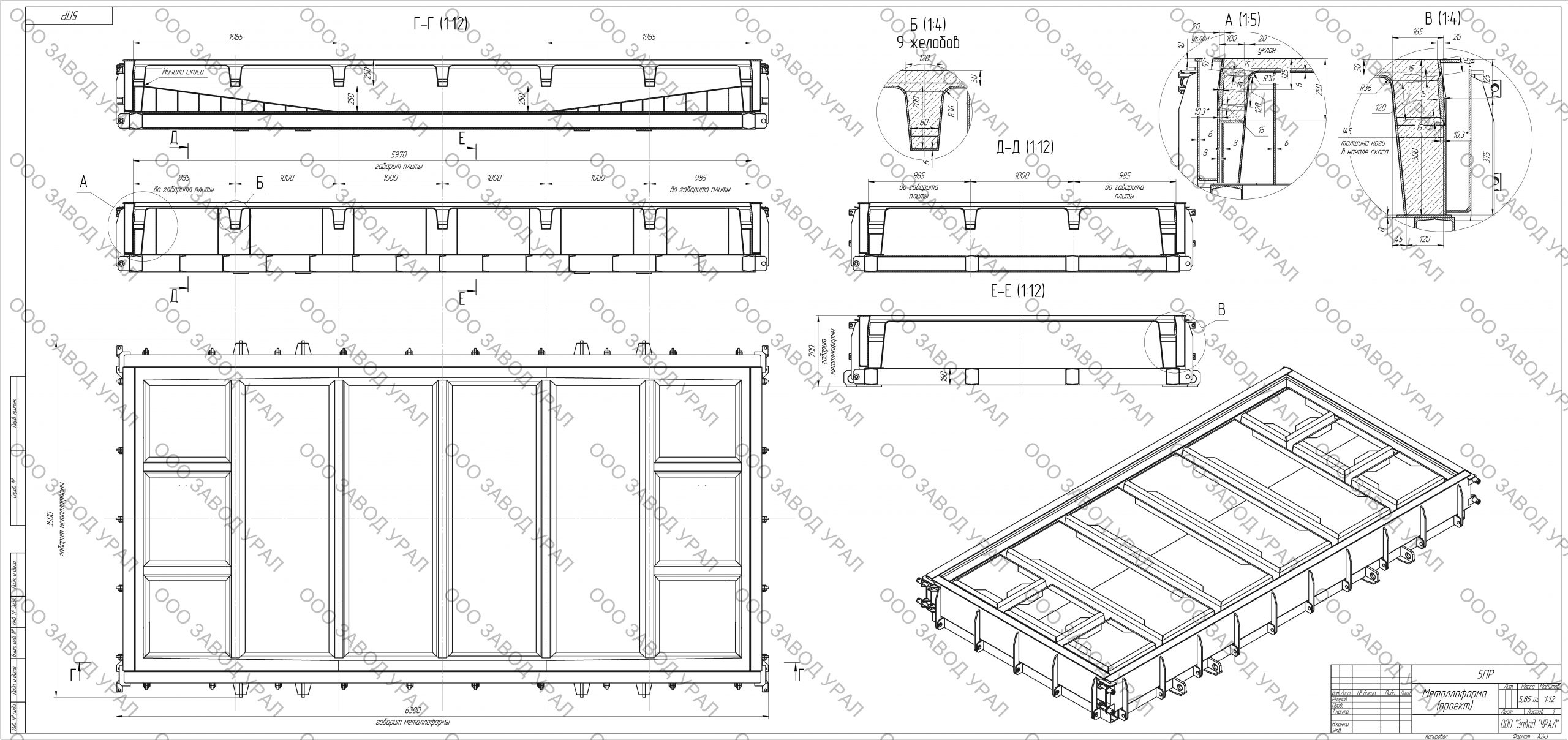
Длинна – 6300мм
Ширина – 3500мм
Высота – 700мм
Рама – швеллер 16
Зеркало вкладыш – 6мм
Масса – 5850кг.

| Номинальная потребляемая мощность, кВт | 0,5 |
| Номинальная напряжение, В | 380 |
| Номинальная частота тока, Гц | 50 |
| Частота вращения, об.мин | 3000 |
| Статический момент, кг.см | 2,5…5,1 |
| Вынуждающая сила при синхронной частоте колебаний, кН | 2,5…5,0 |
| Габаритные размеры, мм | 271х187х208 |
| Присоединительные размеры, мм | 100х145Ø13 |
| Масса ИВ-99Н, кг | 15 |
| Рабочий ресурс, ч | 3000 |

| Номинальная потребляемая мощность, кВт | 0,9 |
| Номинальная напряжение, В | 380 |
| Номинальная частота тока, Гц | 50 |
| Частота вращения, об.мин | 3000 |
| Статический момент, кг.см | 5,7…11,4 |
| Вынуждающая сила при синхронной частоте колебаний, кН | 5,6…11,3 |
| Габаритные размеры, мм | 365х235х250 |
| Присоединительные размеры, мм | 130х190Ø17 |
| Климатическое исполнение | У2 |
| Масса ИВ-98Б, кг | 20 |
| Рабочий ресурс, ч | 700 |
| Тип | Площадочный вибратор |
| Амплитуда колебаний (расчётная), мм | 0,1-0,15 |
| Грузоподъемность одной тумбы, кг | 4500 |
| Частота колебаний, шт/мин | 3000 |
| Мощность потребления, кВт | 10.8 |
| Вибратор | ВИ-107Н |
| Количество, шт | 4 |
| Мощность потребления одного, кВт | 2,7 |
| Напряжение, В | 380 |
| Частота тока, Гц | 50 |
| Длина, мм | 3000 |
| Ширина, мм | 2200 |
| Высота, мм | 800 |
| Масса, кг | 1200 |
| Длина | 1500 мм |
| Ширина | 1500 мм |
| Высота | 2000 мм |
| Зеркало | 3 мм |
| Обвязка + ноги + основание | Швеллер 8 |
| Объём | 1,1 м3 |
| Длина | 4100 мм |
| Ширина | 2400 мм |
| Высота | 3300 мм |
| Рама | труба 180х140мм |
| Масса | 3500 кг |
| Обьем бункера бетона | 2,5 м3 |
| Питатель бункера | ленточный |
| Ширина ленты питателя | 1400 мм |
| Число оборотов барабана питателя | 31 об.мин |
| Скорость движения ленты питателя | 26,5 м.мин |
| Привод транспортера | 4кВтх1500 КА77х31 |
| Скорость перемещения бетоноукладчика | 10/20 м.мин |
| Привод перемещения Бетоноукладчика | 2.2 кВт NMRV130 (2шт) |
| Колея | 2868 мм |
5ПГ6
Компания «УРАЛ» изготавливает высококачественные формы для производства ребристых плит 5ПГ6. Это доборные ЖБИ, имеющие П-образную форму и специальное отверстие на основной плоскости под установку вентилятора. Конструктивно платформа по всей длине с боков имеет два продольных ребра жесткости. Плита может иметь различные технологические отверстия, вырезы и углубления на гранях жесткости (используются для обустройства шпонок в смежных элементах). Все особенности отражены техническим проектом. Данные элементы применяют в тех случаях, когда плоские панели не обладают должной несущей способностью. Ребристые плиты благодаря напряженному каркасу армирования способны воспринимать колоссальные вертикальные нагрузки, а также активно работать в условиях временных, статических и динамических, а также сжимающих и изгибающих нагрузок. Плиты 5ПГ6 – это высокопрочные, надежные и долговечные изделия, которые выпускают согласно самым жестким требованиям действующих стандартов.
Завод Урал реализует оборудование с различными параметрами. Толщина, масса и габаритные размеры устанавливаются ГОСТами. Обечайкам приписываются соответствующие названия. Они состоят из типа оборудования и его характеристик.
Завод Урал также изготавливает ЖБИ формы по индивидуальным параметрам заказчика. Стандартное оборудование не всегда подходит для поставленных целей. Наши профессионалы помогут составить чертежи под конкретные задачи и изготовят оборудование в короткие сроки.
Высокое качество, проверенное временем, вот что предлагает завод Урал. А положительные отзывы партнеров подтверждают его из года в год.
Нижнекамск, Спортивная, 2
пн-пт: 9:00 - 18:00 | сб-вс: вых.